Gewerbeobjekt Stettfeld - 7€ | Angebot:23941392

Abteil in Werkhalle zu Vermieten Miete Hallenabteil

Informationen zur Immobilie:
Ort
96188 Stettfeld
Objektart
Gewerbeobjekt
Größe
ca. 7,00 m²
7 €
(zzgl. Nebenkosten)
Kaltmiete
Beschreibung:
Mehr zum Angebot Abteil in Werkhalle zu Vermieten Miete Hallenabteil:

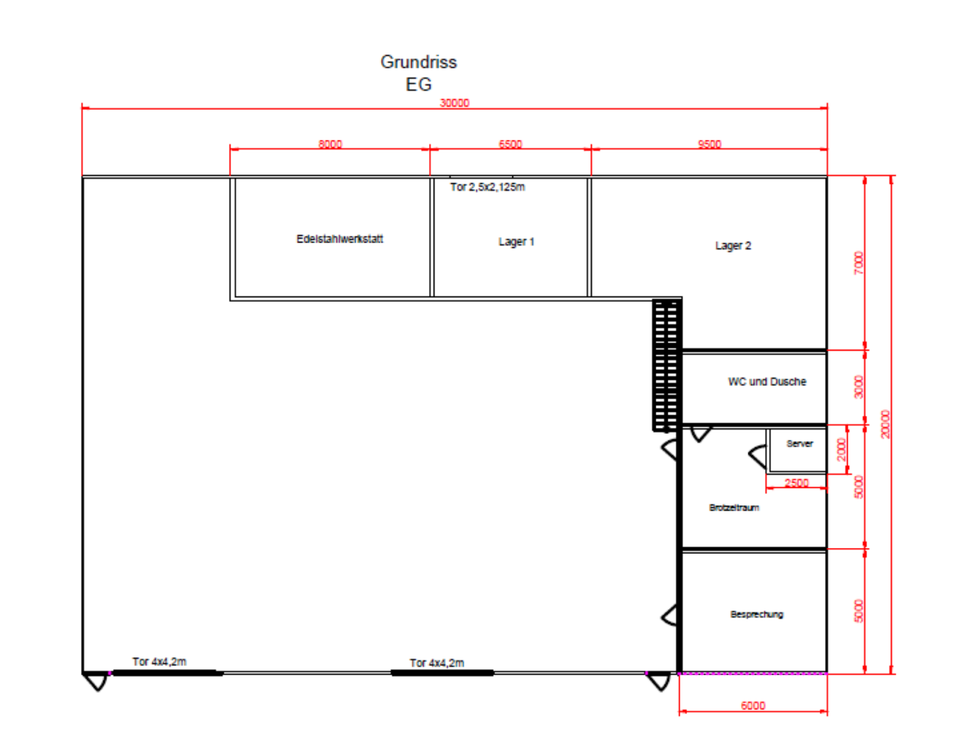
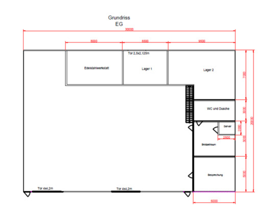
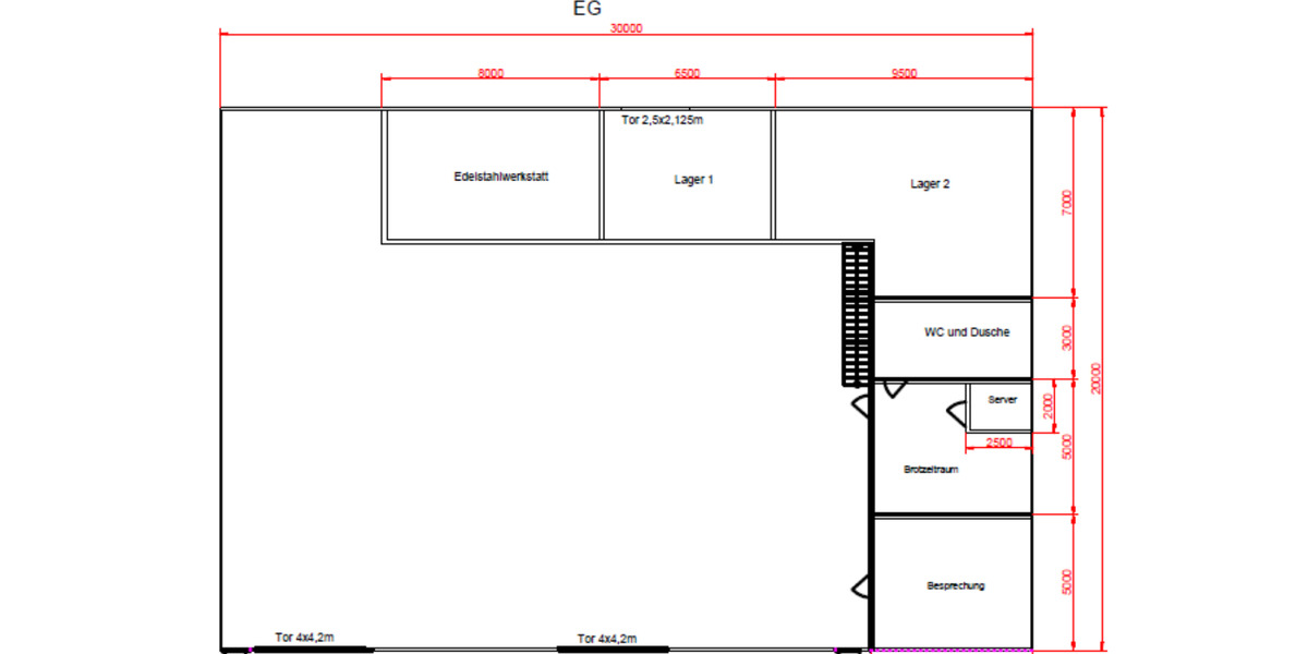
Zur Vermietung wird angeboten: Abteil in Werkhalle/Gewerbehalle mit Büroflächen
Verfügbar ab 01.05.2026
Abteilgrößen zwischen 90m² und 600m² sind möglich.
Abtrennung erfolgt in Absprache und auf Wunsch des Mieters

Größe gesamt: ca. 760 m²
Aufgeteilt in... mehr erfahren
weitere Gewerbeobjekte
weitere Angebote in Stettfeld
social facebook social youtube social instagram social tiktok

Copyright © 2000 - 2026 | 1A Infosysteme GmbH | Content by: 1A-Mieterportal.de 26.04.2026