Wohnungen zur Miete
1A-Mieterportal.de
Mieter
Ratgeber
Mietrecht einfach erklärt
Wohnungssuche & Bewerbung
Einzug & Übergabe
Nebenkosten & Energie
Mängel & Konflikte
Auszug & Kaution
Vermieter
Ratgeber
Vermieter-Know-How
Rechte & Pflichten
Nebenkosten & Abrechnung
Mietausfall vermeiden
Wohnungsübergabe
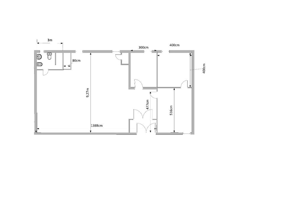
Bürofläche 165m² vielseitig Nutzbar als Laden, Büro oder Showroom
Informationen zur Immobilie:
Ort
04509 Delitzsch
Objektart
Gewerbeobjekt
Größe
ca. 8,50 m²
1.580 €
(zzgl. Nebenkosten)
Kaltmiete
Beschreibung:
Mehr zum Angebot Bürofläche 165m² vielseitig Nutzbar als Laden, Büro oder Showroom:
Büro 165m² - Erstbezug!
vielseitig Nutzbar als Laden, Büro oder Showroom
komplett Saniert
Davon ca. 6m² Bad mit Dusche
Großraumbüro / Ausstellungsfläche ca. 115m²
1. Büro 6m²
2. Büro 20m²
3. Büro 16m²
Erstbezug
Laminatfußboden
Strukturierte Netzwerkverkabelung vorhanden
19" Netzwerkschrank
Für Küchenzeile...
mehr erfahren
Mehr Infos ➜
weitere Gewerbeobjekte
❮
alle Gewerbeobjekte
❯
alle Gewerbeobjekte
weitere Angebote in Delitzsch
Orte im Umkreis
Leipzig
Halle (Saale)
Bitterfeld-Wolfen
Merseburg
Markkleeberg
Schkeuditz
Markranstädt
Taucha
Eilenburg
Landsberg
Sandersdorf-Brehna
Südliches Anhalt
Muldestausee
Gräfenhainichen
Schkopau
Brandis
Über Uns
Impressum
Datenschutz
Cookies
Copyright © 2000 - 2026 | 1A Infosysteme GmbH | Content by: 1A-Mieterportal.de 16.04.2026