Gewerbeobjekt Heidenheim an der Brenz - 1.800€ | Angebot:25698414 Gewerbeobjekt Heidenheim an der Brenz - 1.800€ | Angebot:25698414 Gewerbeobjekt Heidenheim an der Brenz - 1.800€ | Angebot:25698414 Gewerbeobjekt Heidenheim an der Brenz - 1.800€ | Angebot:25698414 Gewerbeobjekt Heidenheim an der Brenz - 1.800€ | Angebot:25698414
Gewerbeobjekt Heidenheim an der Brenz - 1.800€ | Angebot:25698414 Gewerbeobjekt Heidenheim an der Brenz - 1.800€ | Angebot:25698414 Gewerbeobjekt Heidenheim an der Brenz - 1.800€ | Angebot:25698414 Gewerbeobjekt Heidenheim an der Brenz - 1.800€ | Angebot:25698414 Gewerbeobjekt Heidenheim an der Brenz - 1.800€ | Angebot:25698414

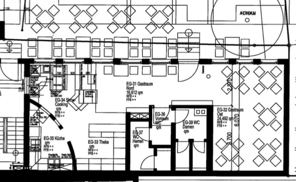
Café Bar Shisha Restaurant Ladenfläche - Stadtmitte

Informationen zur Immobilie:
Ort
89522 Heidenheim an der Brenz
Objektart
Gewerbeobjekt
Größe
ca. 90,00 m²
1.800 €
(zzgl. Nebenkosten)
Kaltmiete
Beschreibung:
Mehr zum Angebot Café Bar Shisha Restaurant Ladenfläche - Stadtmitte:

Voll ausgestattete Gastronomiefläche in Heidenheim – sofort startklar!

Zur Vermietung steht eine komplett eingerichtete Gastro-Location in zentraler Lage von Heidenheim, ideal für die Weiterführung als Café, Cocktailbar, Restaurant, Pizzeria, Kneipe, Sportsbar... mehr erfahren
weitere Gewerbeobjekte
weitere Angebote in Heidenheim an der Brenz
social facebook social youtube social instagram social tiktok

Copyright © 2000 - 2026 | 1A Infosysteme GmbH | Content by: 1A-Mieterportal.de 16.04.2026