Dachgeschoßwohnung Theres - 3 Zimmer, 90 m², 780€ | Angebot:25978847

DG-Wohnung

Informationen zur Immobilie:
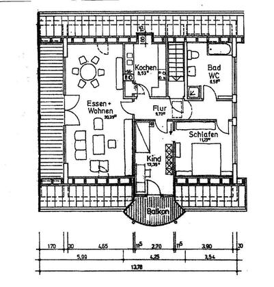
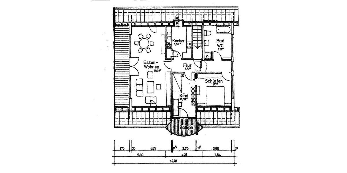
Zimmeranzahl
3
Ort
97531 Theres
Objektart
Wohnung
Größe
ca. 90,00 m²
780 €
(zzgl. Nebenkosten)
Kaltmiete
Beschreibung:
Mehr zum Angebot DG-Wohnung:

Moderne geräumige 3 - 4 Zimmer Dachgeschoss-Wohnung,
Untertheres
Wohnfläche ca. 90,0 m2
Grundfläche ca. 100,0 m2
Bezug ab 05/2026 bzw. nach Absprache/Vereinbarung
Moderne Einbauküche (Ablöse erforderlich)
Kaution 3 Monatsmieten
Holzofen
Nichtraucherwohnung, keine Haustiere,
Neu renoviert,
Mieter-Selbstauskunft erforderlich
Bei Interesse oder Fragen... mehr erfahren
weitere 3 Zimmer Wohnungen
weitere Angebote in Theres
social facebook social youtube social instagram social tiktok

Copyright © 2000 - 2026 | 1A Infosysteme GmbH | Content by: 1A-Mieterportal.de 17.04.2026