Wohnungen zur Miete
1A-Mieterportal.de
Mieter
Ratgeber
Mietrecht einfach erklärt
Wohnungssuche & Bewerbung
Einzug & Übergabe
Nebenkosten & Energie
Mängel & Konflikte
Auszug & Kaution
Vermieter
Ratgeber
Vermieter-Know-How
Rechte & Pflichten
Nebenkosten & Abrechnung
Mietausfall vermeiden
Wohnungsübergabe
Flexibel nutzbare Gewerbefläche in zentraler Lage – Mainbernheim
Informationen zur Immobilie:
Ort
97350 Mainbernheim
Objektart
Gewerbeobjekt
Größe
ca. 55,00 m²
700 €
(zzgl. Nebenkosten)
Kaltmiete
Beschreibung:
Mehr zum Angebot Flexibel nutzbare Gewerbefläche in zentraler Lage – Mainbernheim:
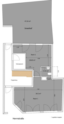
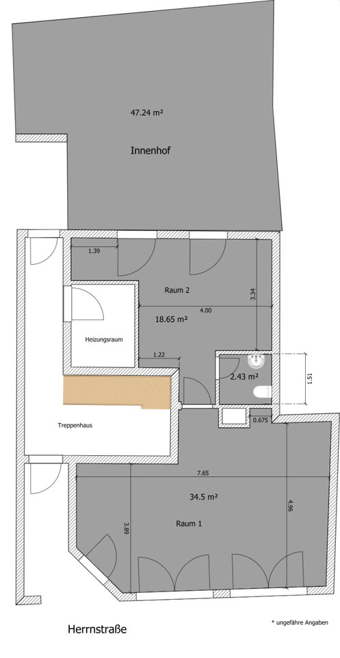
Zur Vermietung steht eine vielseitig nutzbare Gewerbeeinheit im Erdgeschoss eines Wohn- und Geschäftshauses in zentraler Lage von Mainbernheim.
Die Einheit umfasst ca. 55 m² aufgeteilt in 2 Räumen.
-----Energetische Modernisierung-----
Das Gebäude wird...
mehr erfahren
Mehr Infos ➜
weitere Gewerbeobjekte
❮
alle Gewerbeobjekte
❯
alle Gewerbeobjekte
weitere Angebote in Mainbernheim
Orte im Umkreis
Würzburg
Kitzingen
Bad Windsheim
Ochsenfurt
Höchberg
Veitshöchheim
Volkach
Rimpar
Dettelbach
Gerolzhofen
Uffenheim
Gerbrunn
Schlüsselfeld
Kolitzheim
Giebelstadt
Rottendorf
Über Uns
Impressum
Datenschutz
Cookies
Copyright © 2000 - 2026 | 1A Infosysteme GmbH | Content by: 1A-Mieterportal.de 17.04.2026