Wohnungen zur Miete
1A-Mieterportal.de
Mieter
Ratgeber
Mietrecht einfach erklärt
Wohnungssuche & Bewerbung
Einzug & Übergabe
Nebenkosten & Energie
Mängel & Konflikte
Auszug & Kaution
Vermieter
Ratgeber
Vermieter-Know-How
Rechte & Pflichten
Nebenkosten & Abrechnung
Mietausfall vermeiden
Wohnungsübergabe
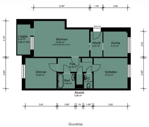
Frisch renovierte Wohnung zu Vermieten
Informationen zur Immobilie:
Zimmeranzahl
3
Ort
28757 Bremen
Objektart
Wohnung
Größe
ca. 75,00 m²
900 €
(zzgl. Nebenkosten)
Kaltmiete
Beschreibung:
Mehr zum Angebot Frisch renovierte Wohnung zu Vermieten:
Frisch renovierte Wohnung inkl. Einbauküche zum Erstbezug in Bremen Vegesack zum Miete.
Die Wohnung wird im Moment Saniert und ist deshalb bisher nur mit dem Grundriss und der Geplanten Küche zu...
mehr erfahren
Mehr Infos ➜
weitere 3 Zimmer Wohnungen
❮
alle 3 Zimmer Wohnungen
❯
alle 3 Zimmer Wohnungen
weitere Angebote in Bremen
Orte im Umkreis
Bremen
Oldenburg
Delmenhorst
Stuhr
Ganderkesee
Weyhe
Osterholz-Scharmbeck
Rastede
Schwanewede
Lilienthal
Hude (Oldenburg)
Oyten
Brake (Unterweser)
Ritterhude
Hatten
Hagen im Bremischen
Über Uns
Impressum
Datenschutz
Cookies
Copyright © 2000 - 2026 | 1A Infosysteme GmbH | Content by: 1A-Mieterportal.de 16.04.2026