Gewerbeobjekt Friedeburg - 1.950€ | Angebot:21580761

Gewerbe-Praxisräume 1. OG mit Personenaufzug in Friedeburg - Neubau

Informationen zur Immobilie:
Ort
26446 Friedeburg
Objektart
Gewerbeobjekt
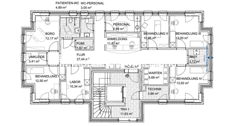
Größe
ca. 140,83 m²
1.950 €
(zzgl. Nebenkosten)
Kaltmiete
Beschreibung:
Mehr zum Angebot Gewerbe-Praxisräume 1. OG mit Personenaufzug in Friedeburg - Neubau:

# Objektbeschreibung
Neue Praxisräume mit Aufzug im Zentrum von Friedeburg zu mieten!
Auf ca. 140 m² Praxisfläche bieten wir ihnen einen Bezug in einem Neubau, modern hell und freundlich ausgestattet. Ein Personenaufzug... mehr erfahren
weitere Gewerbeobjekte
weitere Angebote in Friedeburg
social facebook social youtube social instagram social tiktok

Copyright © 2000 - 2026 | 1A Infosysteme GmbH | Content by: 1A-Mieterportal.de 31.05.2026