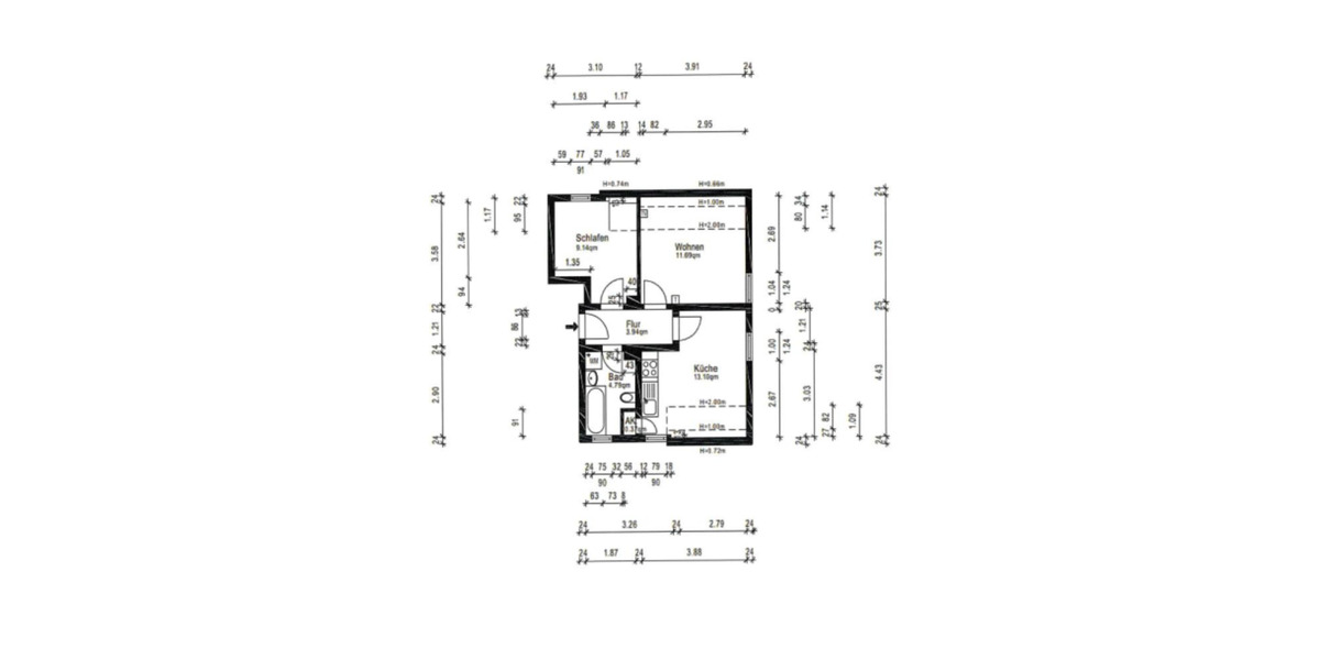
Dachgeschoßwohnung Netphen - 2 Zimmer, 42 m², 380€ | Angebot:25438997

Helle Zweizimmerwohnung im charmanten Dachgeschoss.

Informationen zur Immobilie:
Zimmeranzahl
2
Ort
57250 Netphen
Objektart
Wohnung
Größe
ca. 42,00 m²
380 €
(zzgl. Nebenkosten)
Kaltmiete
Beschreibung:
Mehr zum Angebot Helle Zweizimmerwohnung im charmanten Dachgeschoss.:

Diese gepflegte 2-Zimmer-Wohnung mit ca. 42 m² Wohnfläche befindet sich im Dachgeschoss eines gepflegten Mehrfamilienhauses in Erndtebrück. Die Wohnung verfügt über ein Badezimmer und eine normale Innenausstattung, die Raum für... mehr erfahren
weitere 2 Zimmer Wohnungen
weitere Angebote in Netphen
social facebook social youtube social instagram social tiktok

Copyright © 2000 - 2026 | 1A Infosysteme GmbH | Content by: 1A-Mieterportal.de 16.04.2026