Gewerbeobjekt Karlskron - 500€ | Angebot:25945876 Gewerbeobjekt Karlskron - 500€ | Angebot:25945876 Gewerbeobjekt Karlskron - 500€ | Angebot:25945876
Gewerbeobjekt Karlskron - 500€ | Angebot:25945876 Gewerbeobjekt Karlskron - 500€ | Angebot:25945876 Gewerbeobjekt Karlskron - 500€ | Angebot:25945876

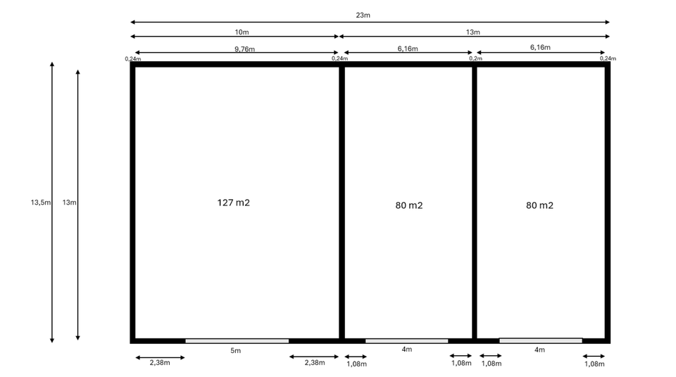
Lagerhalle - Gewerbe oder Private Nutzung

Informationen zur Immobilie:
Ort
85123 Karlskron
Objektart
Gewerbeobjekt
Größe
ca. 6,25 m²
500 €
(zzgl. Nebenkosten)
Kaltmiete
Beschreibung:
Mehr zum Angebot Lagerhalle - Gewerbe oder Private Nutzung:

Zur Vermietung steht eine neue und vielseitig nutzbare Lagerhalle mit sehr guter Ausstattung. Die Halle ist vollständig isoliert (Dach mit Sandwichpaneelen, Wände mit ca. 12u202fcm Isolierung) und bietet ideale Bedingungen... mehr erfahren
weitere Gewerbeobjekte
weitere Angebote in Karlskron
social facebook social youtube social instagram social tiktok

Copyright © 2000 - 2026 | 1A Infosysteme GmbH | Content by: 1A-Mieterportal.de 16.04.2026