Wohnungen zur Miete
1A-Mieterportal.de
Mieter
Ratgeber
Mietrecht einfach erklärt
Wohnungssuche & Bewerbung
Einzug & Übergabe
Nebenkosten & Energie
Mängel & Konflikte
Auszug & Kaution
Vermieter
Ratgeber
Vermieter-Know-How
Rechte & Pflichten
Nebenkosten & Abrechnung
Mietausfall vermeiden
Wohnungsübergabe
Lagerhalle zentral in Iserlohn
Informationen zur Immobilie:
Ort
58638 Iserlohn
Objektart
Gewerbeobjekt
Größe
ca. 3,50 m²
700 €
(zzgl. Nebenkosten)
Kaltmiete
Beschreibung:
Mehr zum Angebot Lagerhalle zentral in Iserlohn:
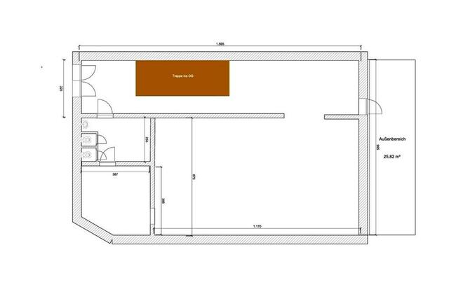
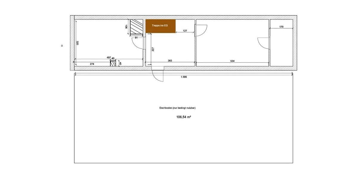
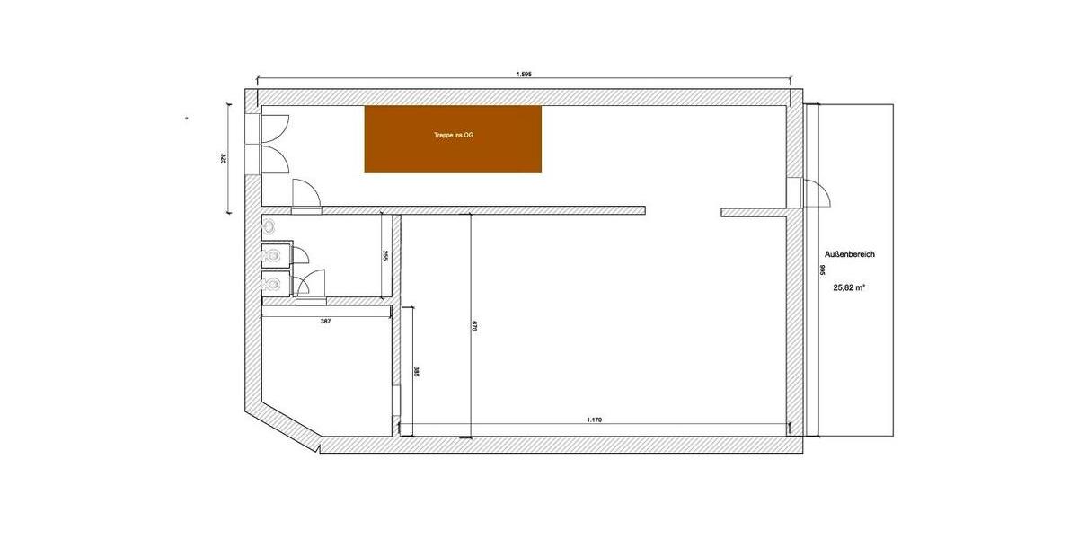
Zur Vermietung steht eine Lagerhalle in zentraler Lage von Iserlohn mit einer Gesamtfläche von 225,5 m².
Die Immobilie erstreckt sich über zwei Etagen und bietet ideale Voraussetzungen für Lager, Gewerbe oder...
mehr erfahren
Mehr Infos ➜
weitere Gewerbeobjekte
❮
alle Gewerbeobjekte
❯
alle Gewerbeobjekte
weitere Angebote in Iserlohn
Orte im Umkreis
Dortmund
Hagen
Witten
Lünen
Arnsberg
Lüdenscheid
Unna
Menden (Sauerland)
Bergkamen
Schwerte
Kamen
Hemer
Gevelsberg
Werl
Ennepetal
Schwelm
Über Uns
Impressum
Datenschutz
Cookies
Copyright © 2000 - 2026 | 1A Infosysteme GmbH | Content by: 1A-Mieterportal.de 31.05.2026