Erdgeschoßwohnung Oerlenbach - 1.5 Zimmer, 67 m², 569€ | Angebot:25959700

Mietwohnung, 1,5 Zimmer, 67 qm, NeubauErstbezug

Informationen zur Immobilie:
Zimmeranzahl
1.5
Ort
97714 Oerlenbach
Objektart
Wohnung
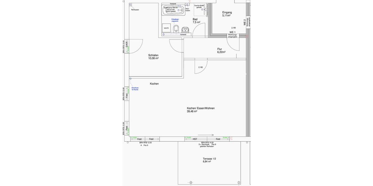
Größe
ca. 67,00 m²
569 €
(zzgl. Nebenkosten)
Kaltmiete
Beschreibung:
Mehr zum Angebot Mietwohnung, 1,5 Zimmer, 67 qm, NeubauErstbezug:

Oerlenbach OT Rottershausen

Das Haus, in dem diese Wohnung ist, wird aktuell noch gebaut. Bezugsfertig vorraussichtlich September 2026.
Besichtigungen können stattfinden sobald der Bau begehbar ist. Es handelt sich um die Wohnung... mehr erfahren
weitere 1.5 Zimmer Wohnungen
weitere Angebote in Oerlenbach
social facebook social youtube social instagram social tiktok

Copyright © 2000 - 2026 | 1A Infosysteme GmbH | Content by: 1A-Mieterportal.de 20.04.2026