Dachgeschoßwohnung Gütersloh Kattenstroth - 3 Zimmer, 97 m², 1.100€ | Angebot:25807057 Dachgeschoßwohnung Gütersloh Kattenstroth - 3 Zimmer, 97 m², 1.100€ | Angebot:25807057
Dachgeschoßwohnung Gütersloh Kattenstroth - 3 Zimmer, 97 m², 1.100€ | Angebot:25807057 Dachgeschoßwohnung Gütersloh Kattenstroth - 3 Zimmer, 97 m², 1.100€ | Angebot:25807057

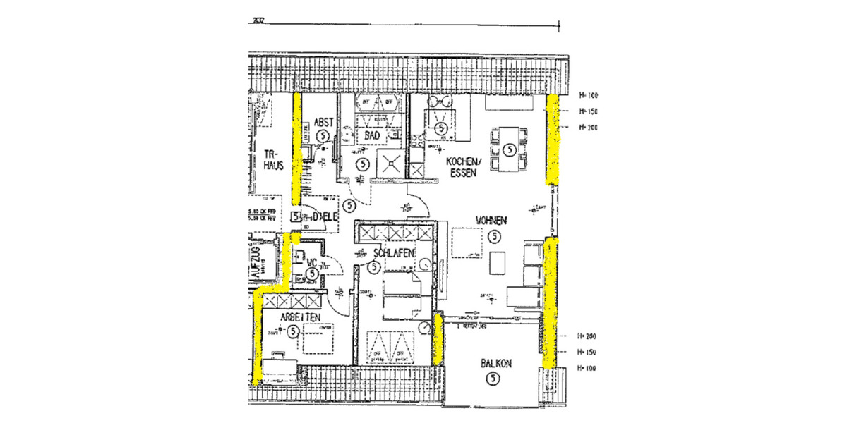
Modern und Zentrumsnah - komfortabel Wohnen in Gütersloh

Informationen zur Immobilie:
Zimmeranzahl
3
Ort
33332 Gütersloh
Objektart
Wohnung
Größe
ca. 96,70 m²
1.100 €
(zzgl. Nebenkosten)
Kaltmiete
Beschreibung:
Mehr zum Angebot Modern und Zentrumsnah - komfortabel Wohnen in Gütersloh:

Die Dachgeschosswohnung liegt in einem modernen 6-Parteien-Haus aus dem Jahr 2023.
Eine schnelle Anbindung an die A2 sowie eine gute Anbindung an den ÖPNV sind gegeben.

Das Stadtzentrum sowie der Stadtpark sind... mehr erfahren
weitere 3 Zimmer Wohnungen
weitere Angebote in Gütersloh
social facebook social youtube social instagram social tiktok

Copyright © 2000 - 2026 | 1A Infosysteme GmbH | Content by: 1A-Mieterportal.de 16.04.2026