Wohnungen zur Miete
1A-Mieterportal.de
Mieter
Ratgeber
Mietrecht einfach erklärt
Wohnungssuche & Bewerbung
Einzug & Übergabe
Nebenkosten & Energie
Mängel & Konflikte
Auszug & Kaution
Vermieter
Ratgeber
Vermieter-Know-How
Rechte & Pflichten
Nebenkosten & Abrechnung
Mietausfall vermeiden
Wohnungsübergabe
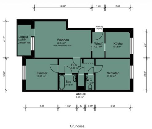
Neu renovierte Wohnung zu Vermieten
Informationen zur Immobilie:
Zimmeranzahl
3
Ort
26655 Westerstede
Objektart
Wohnung
Größe
ca. 75,00 m²
900 €
(zzgl. Nebenkosten)
Kaltmiete
Beschreibung:
Mehr zum Angebot Neu renovierte Wohnung zu Vermieten:
Frisch renovierte Wohnung inkl. Einbauküche zum Erstbezug in Bremen Vegesack zum Miete.
Die Wohnung wird im Moment Saniert und ist deshalb bisher nur mit dem Grundriss und der Geplanten Küche zu...
mehr erfahren
Mehr Infos ➜
weitere 3 Zimmer Wohnungen
❮
alle 3 Zimmer Wohnungen
❯
alle 3 Zimmer Wohnungen
weitere Angebote in Westerstede
Orte im Umkreis
Oldenburg
Bad Zwischenahn
Varel
Moormerland
Rastede
Edewecht
Friesoythe
Rhauderfehn
Wardenburg
Wiefelstede
Großefehn
Saterland
Wiesmoor
Barßel
Zetel
Uplengen
Über Uns
Impressum
Datenschutz
Cookies
Copyright © 2000 - 2026 | 1A Infosysteme GmbH | Content by: 1A-Mieterportal.de 17.04.2026