Wohnungen zur Miete
1A-Mieterportal.de
Mieter
Ratgeber
Mietrecht einfach erklärt
Wohnungssuche & Bewerbung
Einzug & Übergabe
Nebenkosten & Energie
Mängel & Konflikte
Auszug & Kaution
Vermieter
Ratgeber
Vermieter-Know-How
Rechte & Pflichten
Nebenkosten & Abrechnung
Mietausfall vermeiden
Wohnungsübergabe
Neubau-Erstbezug! Moderne 2 Zi.-Wohnung in Offenbach-Bieber!
Informationen zur Immobilie:
Zimmeranzahl
2
Ort
63073 Offenbach am Main
Objektart
Wohnung
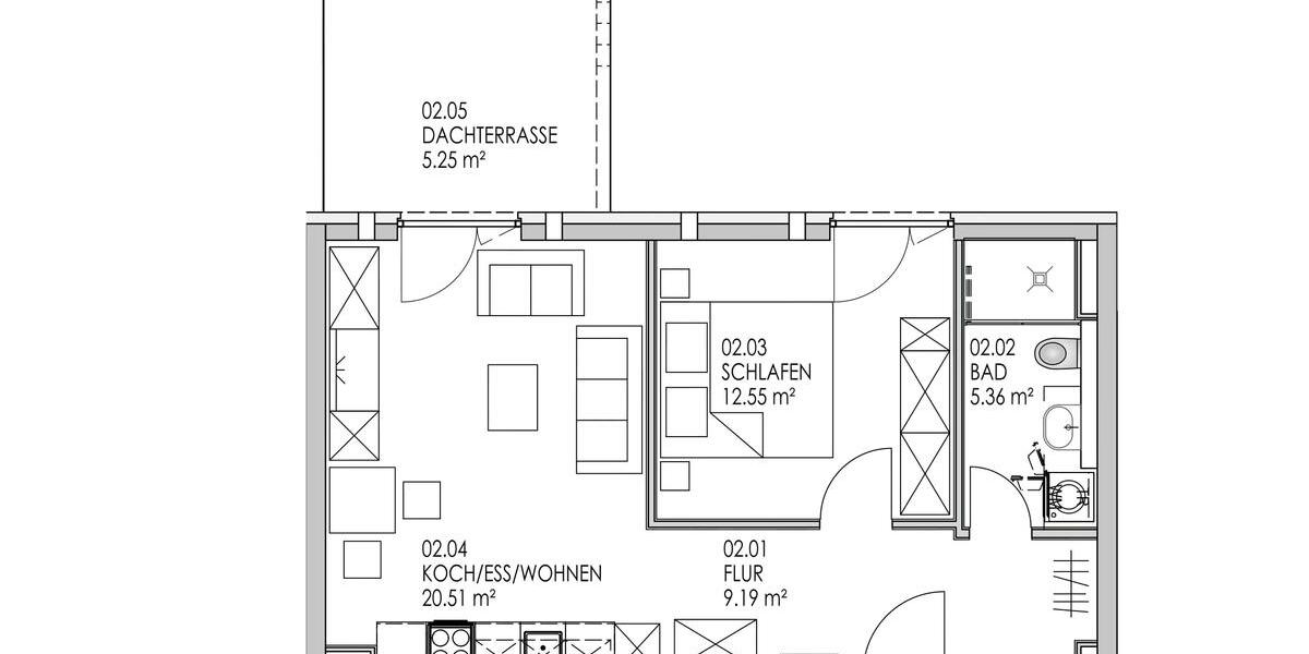
Größe
ca. 52,88 m²
880 €
(zzgl. Nebenkosten)
Kaltmiete
Beschreibung:
Mehr zum Angebot Neubau-Erstbezug! Moderne 2 Zi.-Wohnung in Offenbach-Bieber!:
Neubau-Erstbezug! Sichern Sie sich eine moderne Wohnung in guter Lage von Offenbach-Bieber.
Ihre neue Wohnung verfügt über ca. 52,88 m² Wohnfläche und bietet Ihnen einen Flur, ein innenliegendes Duschbad mit einem...
mehr erfahren
Mehr Infos ➜
weitere 2 Zimmer Wohnungen
❮
alle 2 Zimmer Wohnungen
❯
alle 2 Zimmer Wohnungen
weitere Angebote in Offenbach am Main
Orte im Umkreis
Frankfurt am Main
Darmstadt
Offenbach am Main
Hanau
Aschaffenburg
Bad Homburg vor der Höhe
Oberursel (Taunus)
Rodgau
Dreieich
Hofheim am Taunus
Maintal
Langen (Hessen)
Neu-Isenburg
Mörfelden-Walldorf
Bad Vilbel
Dietzenbach
Über Uns
Impressum
Datenschutz
Cookies
Copyright © 2000 - 2026 | 1A Infosysteme GmbH | Content by: 1A-Mieterportal.de 16.04.2026