Wohnungen zur Miete
1A-Mieterportal.de
Mieter
Ratgeber
Mietrecht einfach erklärt
Wohnungssuche & Bewerbung
Einzug & Übergabe
Nebenkosten & Energie
Mängel & Konflikte
Auszug & Kaution
Vermieter
Ratgeber
Vermieter-Know-How
Rechte & Pflichten
Nebenkosten & Abrechnung
Mietausfall vermeiden
Wohnungsübergabe
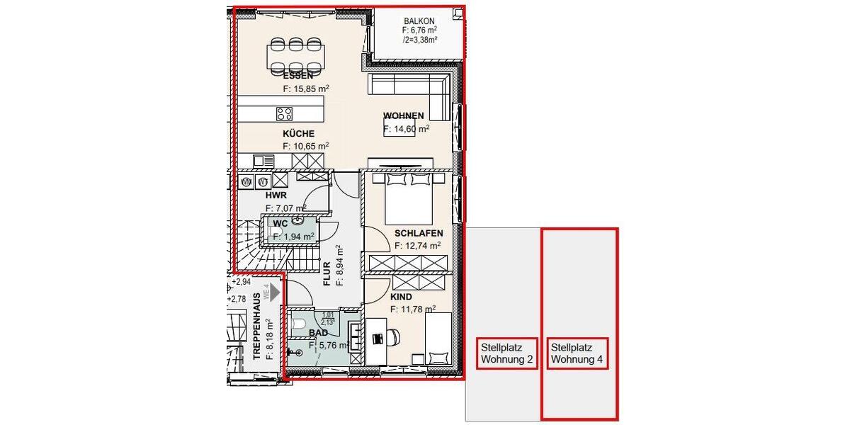
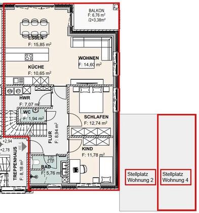
Obergeschosswohnung 4 Zimmer Küche Bad ca.114
Informationen zur Immobilie:
Zimmeranzahl
4
Ort
26219 Bösel
Objektart
Wohnung
Größe
ca. 114,00 m²
1.097 €
(zzgl. Nebenkosten)
Kaltmiete
Beschreibung:
Mehr zum Angebot Obergeschosswohnung 4 Zimmer Küche Bad ca.114:
Zur Vermietung steht eine attraktive Neubauwohnung mit hochwertiger Ausstattung im Erstbezug. Die Wohnung überzeugt durch ihre moderne Architektur, helle Räume sowie einen Balkon.
Ausstattung:
• Helle Wohnküche inkl. Essbereich
• Balkon
• Einbauküche (modern...
mehr erfahren
Mehr Infos ➜
weitere 4 Zimmer Wohnungen
❮
alle 4 Zimmer Wohnungen
❯
alle 4 Zimmer Wohnungen
weitere Angebote in Bösel
Orte im Umkreis
Oldenburg
Cloppenburg
Bad Zwischenahn
Westerstede
Edewecht
Friesoythe
Rhauderfehn
Wardenburg
Wiefelstede
Großenkneten
Garrel
Hatten
Saterland
Barßel
Emstek
Apen
Über Uns
Impressum
Datenschutz
Cookies
Copyright © 2000 - 2026 | 1A Infosysteme GmbH | Content by: 1A-Mieterportal.de 17.04.2026