Gewerbeobjekt Sohland an der Spree - 298€ | Angebot:25258284

+++ Gewerbeeinheit in der Alten Lessingschule zu vermieten +++

Informationen zur Immobilie:
Ort
02689 Sohland an der Spree
Objektart
Gewerbeobjekt
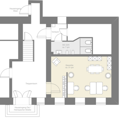
Größe
ca. 39,75 m²
298 €
(zzgl. Nebenkosten)
Kaltmiete
Beschreibung:
Mehr zum Angebot +++ Gewerbeeinheit in der Alten Lessingschule zu vermieten +++:

+++ Kleine Gewerbeeinheit im Erdgeschoss der Alten Lessingschule Sohland +++

Im kernsanierten Denkmalobjekt der ehemaligen Lessingschule in Sohland steht ab sofort eine attraktive und vielseitig nutzbare Gewerbeeinheit zur Vermietung. Die Einheit... mehr erfahren
weitere Gewerbeobjekte
weitere Angebote in Sohland an der Spree
social facebook social youtube social instagram social tiktok

Copyright © 2000 - 2026 | 1A Infosysteme GmbH | Content by: 1A-Mieterportal.de 17.04.2026