Gewerbeobjekt Hechthausen - 3.720€ | Angebot:25383013

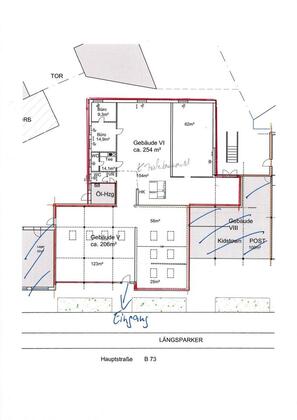
460 QM Gewerbefläche als Büro oder ähnliches nutzbar in Hechthausen

Informationen zur Immobilie:
Ort
21755 Hechthausen
Objektart
Gewerbeobjekt
Größe
ca. 7,00 m²
3.720 €
(zzgl. Nebenkosten)
Kaltmiete
Beschreibung:
Mehr zum Angebot 460 QM Gewerbefläche als Büro oder ähnliches nutzbar in Hechthausen:

Sehr gute Lage direkt an der B73. Großer erster Raum mit Fenster - gut für Kundschaft. Lager Möglichkeiten, weitere Nutzungen als Büro oder ähnliches. 2 Bäder und 1 Küche plus... mehr erfahren
weitere Gewerbeobjekte
weitere Angebote in Hechthausen
social facebook social youtube social instagram social tiktok

Copyright © 2000 - 2026 | 1A Infosysteme GmbH | Content by: 1A-Mieterportal.de 16.04.2026