Wohnungen zur Miete
1A-Mieterportal.de
Mieter
Ratgeber
Mietrecht einfach erklärt
Wohnungssuche & Bewerbung
Einzug & Übergabe
Nebenkosten & Energie
Mängel & Konflikte
Auszug & Kaution
Vermieter
Ratgeber
Vermieter-Know-How
Rechte & Pflichten
Nebenkosten & Abrechnung
Mietausfall vermeiden
Wohnungsübergabe
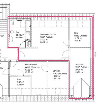
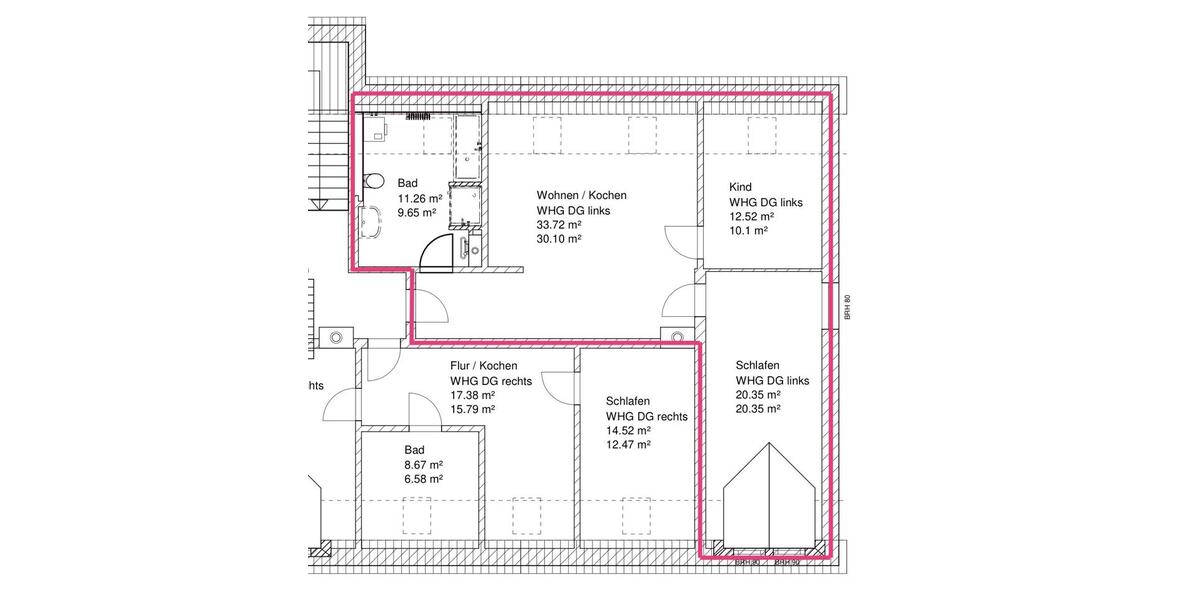
3-Raum Dachgeschoss Wohnung im Zentrum von Riesa
Informationen zur Immobilie:
Zimmeranzahl
2
Ort
01589 Riesa
Objektart
Wohnung
Größe
ca. 70,00 m²
480 €
(zzgl. Nebenkosten)
Kaltmiete
Beschreibung:
Mehr zum Angebot 3-Raum Dachgeschoss Wohnung im Zentrum von Riesa:
COMING SOON
NEU sanierte 3-Raum Dachgeschoss-Wohnung im Zentrum von Riesa. (Friedrich-Engels-Str.) ab voraussichtlich 04/2026 zu vermieten.
Größe: ca. 70 qm Wohnfläche
(Verteilung siehe Grundriss)
Ausstattung:
- neu saniertes Bad mit Wanne, Dusche, Fenster und Fußbodenheizung
-...
mehr erfahren
Mehr Infos ➜
weitere 2 Zimmer Wohnungen
❮
alle 2 Zimmer Wohnungen
❯
alle 2 Zimmer Wohnungen
weitere Angebote in Riesa
Orte im Umkreis
Meißen
Döbeln
Coswig
Großenhain
Oschatz
Nossen
Weinböhla
Klipphausen
Bad Liebenwerda
Elsterwerda
Roßwein
Gröditz
Mügeln
Zeithain
Nünchritz
Wermsdorf
Über Uns
Impressum
Datenschutz
Cookies
Copyright © 2000 - 2026 | 1A Infosysteme GmbH | Content by: 1A-Mieterportal.de 17.04.2026