Wohnungen zur Miete
1A-Mieterportal.de
Mieter
Ratgeber
Mietrecht einfach erklärt
Wohnungssuche & Bewerbung
Einzug & Übergabe
Nebenkosten & Energie
Mängel & Konflikte
Auszug & Kaution
Vermieter
Ratgeber
Vermieter-Know-How
Rechte & Pflichten
Nebenkosten & Abrechnung
Mietausfall vermeiden
Wohnungsübergabe
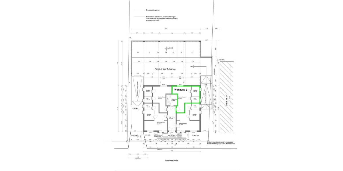
2 Raum Wohnung, Wohnung 3, Erdgeschoss
Informationen zur Immobilie:
Zimmeranzahl
2
Ort
18209 Bad Doberan
Objektart
Wohnung
Größe
ca. 44,00 m²
670 €
(zzgl. Nebenkosten)
Kaltmiete
Beschreibung:
Mehr zum Angebot 2 Raum Wohnung, Wohnung 3, Erdgeschoss:
Wunderschöne und sehr großzügige neu gebaute 2-Raum Wohnung mit kleiner Terrasse.
Die Wohnung befindet sich in einem Haus mit 14 Einheiten, welches zum Frühjahr des Jahres fertiggestellt wird. Das Objekt verfügt...
mehr erfahren
Mehr Infos ➜
weitere 2 Zimmer Wohnungen
❮
alle 2 Zimmer Wohnungen
❯
alle 2 Zimmer Wohnungen
weitere Angebote in Bad Doberan
Orte im Umkreis
Rostock
Kühlungsborn
Bützow
Dummerstorf
Satow
Schwaan
Kröpelin
Elmenhorst/Lichtenhagen
Graal-Müritz
Neubukow
Kritzmow
Broderstorf
Bentwisch
Admannshagen-Bargeshagen
Lambrechtshagen
Roggentin
Über Uns
Impressum
Datenschutz
Cookies
Copyright © 2000 - 2026 | 1A Infosysteme GmbH | Content by: 1A-Mieterportal.de 16.04.2026