Erdgeschoßwohnung Haren (Ems) - 3 Zimmer, 65 m², 650€ | Angebot:25283125 Erdgeschoßwohnung Haren (Ems) - 3 Zimmer, 65 m², 650€ | Angebot:25283125
Erdgeschoßwohnung Haren (Ems) - 3 Zimmer, 65 m², 650€ | Angebot:25283125 Erdgeschoßwohnung Haren (Ems) - 3 Zimmer, 65 m², 650€ | Angebot:25283125

Sehr schöne Erdgeschoßwohnung mit eigenen Wohnungseingang

Informationen zur Immobilie:
Zimmeranzahl
3
Ort
49733 Haren (Ems)
Objektart
Wohnung
Größe
ca. 65,00 m²
650 €
(zzgl. Nebenkosten)
Kaltmiete
Beschreibung:
Mehr zum Angebot Sehr schöne Erdgeschoßwohnung mit eigenen Wohnungseingang:

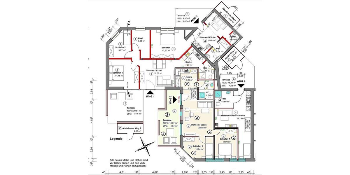
Sehr schöne Erdgeschosswohnung mit eigenen Wohnungszugang und Terrasse. Zentral gelegen in Haren (Wesuwe).
Sehr gute Raumaufteilung:
01 Wohnen / Essen 23,08 qm
02 Küche 6,95 qm
03 Bad/WC 5,16 qm
04 Schlafen 1 11,99 qm
05... mehr erfahren
weitere 3 Zimmer Wohnungen
weitere Angebote in Haren (Ems)
social facebook social youtube social instagram social tiktok

Copyright © 2000 - 2026 | 1A Infosysteme GmbH | Content by: 1A-Mieterportal.de 17.04.2026