Wohnungen zur Miete
1A-Mieterportal.de
Mieter
Ratgeber
Mietrecht einfach erklärt
Wohnungssuche & Bewerbung
Einzug & Übergabe
Nebenkosten & Energie
Mängel & Konflikte
Auszug & Kaution
Vermieter
Ratgeber
Vermieter-Know-How
Rechte & Pflichten
Nebenkosten & Abrechnung
Mietausfall vermeiden
Wohnungsübergabe
Wohnen auf dem Lande
Informationen zur Immobilie:
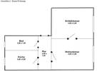
Zimmeranzahl
2
Ort
17039 Brunn
Objektart
Wohnung
Größe
ca. 48,00 m²
Energieausweis
Verbrauchsausweis
Energieeffizienzklasse
D
Energieverbrauchkennwert
110 kWh/(m²·a) kWh/(m²·a)
EPass gültig bis
24.10.2028
220 €
(zzgl. Nebenkosten)
Kaltmiete
Beschreibung:
Mehr zum Angebot Wohnen auf dem Lande:
Das Wohnhaus wurde 1995 saniert. Die Wohnung verfügt über Küche und Bad mit Fenster. Stellplätze sind vorhanden.
Lage
Die Gemeinde befindet sich ca. 10 km nordöstlich der Stadt Neubrandenburg an der...
mehr erfahren
Mehr Infos ➜
weitere 2 Zimmer Wohnungen
❮
alle 2 Zimmer Wohnungen
❯
alle 2 Zimmer Wohnungen
weitere Angebote in Brunn
Orte im Umkreis
Neubrandenburg
Anklam
Friedland
Burg Stargard
Altentreptow
Strasburg (Uckermark)
Woldegk
Penzlin
Jarmen
Ducherow
Blankensee
Wulkenzin
Lindetal
Groß Nemerow
Neuenkirchen
Spantekow
Über Uns
Impressum
Datenschutz
Cookies
Copyright © 2000 - 2026 | 1A Infosysteme GmbH | Content by: 1A-Mieterportal.de 19.04.2026