Wohnungen zur Miete
1A-Mieterportal.de
Mieter
Ratgeber
Mietrecht einfach erklärt
Wohnungssuche & Bewerbung
Einzug & Übergabe
Nebenkosten & Energie
Mängel & Konflikte
Auszug & Kaution
Vermieter
Ratgeber
Vermieter-Know-How
Rechte & Pflichten
Nebenkosten & Abrechnung
Mietausfall vermeiden
Wohnungsübergabe
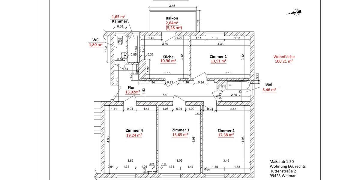
4 ZIMMER-KÜCHE-BAD ZU VERMIETEN
Informationen zur Immobilie:
Zimmeranzahl
4
Ort
99423 Weimar
Objektart
Wohnung
Größe
ca. 100,21 m²
1.100 €
(zzgl. Nebenkosten)
Kaltmiete
Beschreibung:
Mehr zum Angebot 4 ZIMMER-KÜCHE-BAD ZU VERMIETEN:
NETTE UND FREUNDLICHE FAMILIE GESUCHT!
4 ZIMMER-KÜCHE-BAD ZU VERMIETEN
Du suchst ein neues Zuhause im Herzen von Weimar? Wir haben ab 01.05.2026 eine gemütliche 4 ZIMMER-Wohnung zu vergeben!
Die Fakten:
Lage: Absolut zentrumsnah (nur...
mehr erfahren
Mehr Infos ➜
weitere 4 Zimmer Wohnungen
❮
alle 4 Zimmer Wohnungen
❯
alle 4 Zimmer Wohnungen
weitere Angebote in Weimar
Orte im Umkreis
Erfurt
Jena
Rudolstadt
Apolda
Sömmerda
Stadtilm
Amt Wachsenburg
Bad Sulza
Bad Berka
Am Ettersberg
Kahla
Buttstädt
Grammetal
Blankenhain
Ilmtal-Weinstraße
Kölleda
Über Uns
Impressum
Datenschutz
Cookies
Copyright © 2000 - 2026 | 1A Infosysteme GmbH | Content by: 1A-Mieterportal.de 16.04.2026