Wohnungen zur Miete
1A-Mieterportal.de
Mieter
Ratgeber
Mietrecht einfach erklärt
Wohnungssuche & Bewerbung
Einzug & Übergabe
Nebenkosten & Energie
Mängel & Konflikte
Auszug & Kaution
Vermieter
Ratgeber
Vermieter-Know-How
Rechte & Pflichten
Nebenkosten & Abrechnung
Mietausfall vermeiden
Wohnungsübergabe
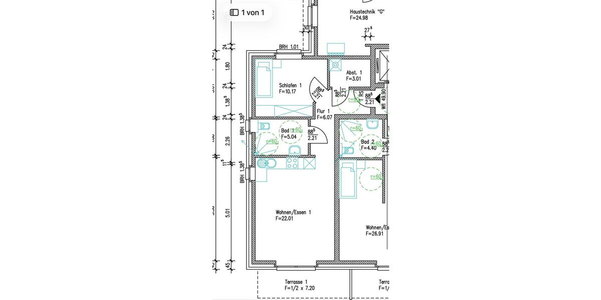
2 Zimmer Neubauwohnung - Erstbezug - Möblierung möglich
Informationen zur Immobilie:
Zimmeranzahl
2
Ort
29633 Munster
Objektart
Wohnung
Größe
ca. 50,00 m²
635 €
(zzgl. Nebenkosten)
Kaltmiete
Beschreibung:
Mehr zum Angebot 2 Zimmer Neubauwohnung - Erstbezug - Möblierung möglich:
Moderne barrierefreie 2-Zimmer-Wohnung (50 m²) im KfW-55-Haus mit hochwertiger Einbauküche & Carport
Rehrhofer Weg 45, 29633 Munster
Eine im EG mit Terrasse und eine im OG mit großem Balkon - beides nach...
mehr erfahren
Mehr Infos ➜
weitere 2 Zimmer Wohnungen
❮
alle 2 Zimmer Wohnungen
❯
alle 2 Zimmer Wohnungen
weitere Angebote in Munster
Orte im Umkreis
Soltau
Schneverdingen
Bergen
Bad Fallingbostel
Südheide
Bispingen
Faßberg
Eschede
Neuenkirchen
Ebstorf
Salzhausen
Suderburg
Wietzendorf
Amelinghausen
Melbeck
Embsen
Über Uns
Impressum
Datenschutz
Cookies
Copyright © 2000 - 2026 | 1A Infosysteme GmbH | Content by: 1A-Mieterportal.de 17.04.2026