Wohnungen zur Miete
1A-Mieterportal.de
Mieter
Ratgeber
Mietrecht einfach erklärt
Wohnungssuche & Bewerbung
Einzug & Übergabe
Nebenkosten & Energie
Mängel & Konflikte
Auszug & Kaution
Vermieter
Ratgeber
Vermieter-Know-How
Rechte & Pflichten
Nebenkosten & Abrechnung
Mietausfall vermeiden
Wohnungsübergabe
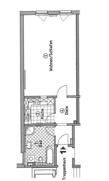
1-Zimmer-Wohnung ab 01. Mai
Informationen zur Immobilie:
Zimmeranzahl
1
Ort
18055 Rostock
Objektart
Wohnung
Größe
ca. 53,00 m²
660 €
(zzgl. Nebenkosten)
Kaltmiete
Beschreibung:
Mehr zum Angebot 1-Zimmer-Wohnung ab 01. Mai:
Ich suche einen Nachmieter für meine gepflegte Wohnung im Stadtzentrum (Breite Str.16) von Rostock.
Die Wohnung eignet sich ausschließlich für eine Einzelperson. Anfragen von Paaren oder Familien können leider nicht berücksichtigt...
mehr erfahren
Mehr Infos ➜
weitere 1 Zimmer Wohnungen
❮
alle 1 Zimmer Wohnungen
❯
alle 1 Zimmer Wohnungen
weitere Angebote in Rostock
Orte im Umkreis
Ribnitz-Damgarten
Bad Doberan
Kühlungsborn
Bützow
Dummerstorf
Laage
Sanitz
Satow
Schwaan
Kröpelin
Marlow
Elmenhorst/Lichtenhagen
Graal-Müritz
Tessin
Kritzmow
Broderstorf
Über Uns
Impressum
Datenschutz
Cookies
Copyright © 2000 - 2026 | 1A Infosysteme GmbH | Content by: 1A-Mieterportal.de 17.04.2026