Wohnungen zur Miete
1A-Mieterportal.de
Mieter
Ratgeber
Mietrecht einfach erklärt
Wohnungssuche & Bewerbung
Einzug & Übergabe
Nebenkosten & Energie
Mängel & Konflikte
Auszug & Kaution
Vermieter
Ratgeber
Vermieter-Know-How
Rechte & Pflichten
Nebenkosten & Abrechnung
Mietausfall vermeiden
Wohnungsübergabe
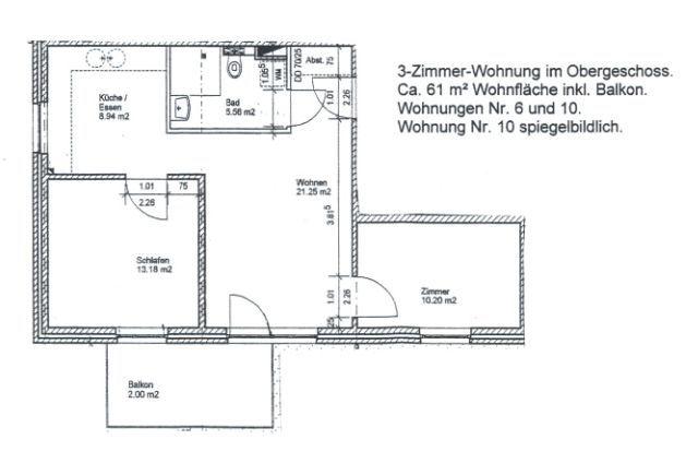
3-Zimmer Wohnung! Nur an Senioren mit gültigem Wohnberechtigungsschein!!
Informationen zur Immobilie:
Zimmeranzahl
3
Ort
24217 Schönberg (Holstein)
Objektart
Wohnung
Größe
ca. 60,76 m²
463 €
(zzgl. Nebenkosten)
Kaltmiete
Beschreibung:
Mehr zum Angebot 3-Zimmer Wohnung! Nur an Senioren mit gültigem Wohnberechtigungsschein!!:
!! Achtung !! Zwingend erforderlich ist die Vorlage eines gültigen Wohnberechtigungsscheins !!
Es handelt sich bei dieser Wohnung in der sehr gepflegten Wohnanlage "Hein Schönberg" um eine großzügige 3-Zimmer-Wohnung mit ca....
mehr erfahren
Mehr Infos ➜
weitere 3 Zimmer Wohnungen
❮
alle 3 Zimmer Wohnungen
❯
alle 3 Zimmer Wohnungen
weitere Angebote in Schönberg (Holstein)
Orte im Umkreis
Kiel
Preetz
Schwentinental
Kronshagen
Malente
Altenholz
Plön
Heikendorf
Gettorf
Flintbek
Schönkirchen
Lütjenburg
Laboe
Molfsee
Mönkeberg
Dänischenhagen
Über Uns
Impressum
Datenschutz
Cookies
Copyright © 2000 - 2026 | 1A Infosysteme GmbH | Content by: 1A-Mieterportal.de 18.04.2026