Wohnungen zur Miete
1A-Mieterportal.de
Mieter
Ratgeber
Mietrecht einfach erklärt
Wohnungssuche & Bewerbung
Einzug & Übergabe
Nebenkosten & Energie
Mängel & Konflikte
Auszug & Kaution
Vermieter
Ratgeber
Vermieter-Know-How
Rechte & Pflichten
Nebenkosten & Abrechnung
Mietausfall vermeiden
Wohnungsübergabe
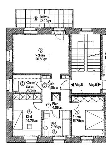
3 Zimmerwohnung zu vermieten
Informationen zur Immobilie:
Zimmeranzahl
3
Ort
56859 Alf
Objektart
Wohnung
Größe
ca. 87,00 m²
Energieausweis
Verbrauchsausweis
Energieeffizienzklasse
G
Energieverbrauchkennwert
208,6 kWh/(m²·a) kWh/(m²·a)
EPass gültig bis
01.09.2029
600 €
(zzgl. Nebenkosten)
Kaltmiete
Beschreibung:
Mehr zum Angebot 3 Zimmerwohnung zu vermieten:
In einem ruhigen und naturnahen Umfeld, etwa 2 km von Alf an der Mosel entfernt, befindet sich diese Wohnung im zweiten Obergeschoss eines Mehrfamilienhauses mit insgesamt acht Einheiten. Mit einer...
mehr erfahren
Mehr Infos ➜
weitere 3 Zimmer Wohnungen
❮
alle 3 Zimmer Wohnungen
❯
alle 3 Zimmer Wohnungen
weitere Angebote in Alf
Orte im Umkreis
Wittlich
Morbach
Daun
Simmern/Hunsrück
Bernkastel-Kues
Traben-Trarbach
Kastellaun
Cochem
Zell (Mosel)
Kirchberg (Hunsrück)
Münstermaifeld
Ulmen
Sohren
Kaisersesch
Salmtal
Hetzerath
Über Uns
Impressum
Datenschutz
Cookies
Copyright © 2000 - 2026 | 1A Infosysteme GmbH | Content by: 1A-Mieterportal.de 17.04.2026