Wohnungen zur Miete
1A-Mieterportal.de
Mieter
Ratgeber
Mietrecht einfach erklärt
Wohnungssuche & Bewerbung
Einzug & Übergabe
Nebenkosten & Energie
Mängel & Konflikte
Auszug & Kaution
Vermieter
Ratgeber
Vermieter-Know-How
Rechte & Pflichten
Nebenkosten & Abrechnung
Mietausfall vermeiden
Wohnungsübergabe
Wohnen auf Zeit in Karlsruhe 1.500 €
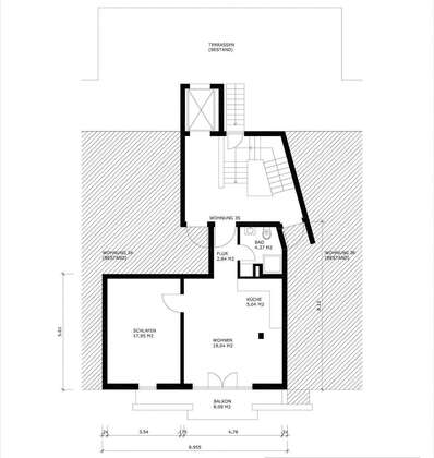
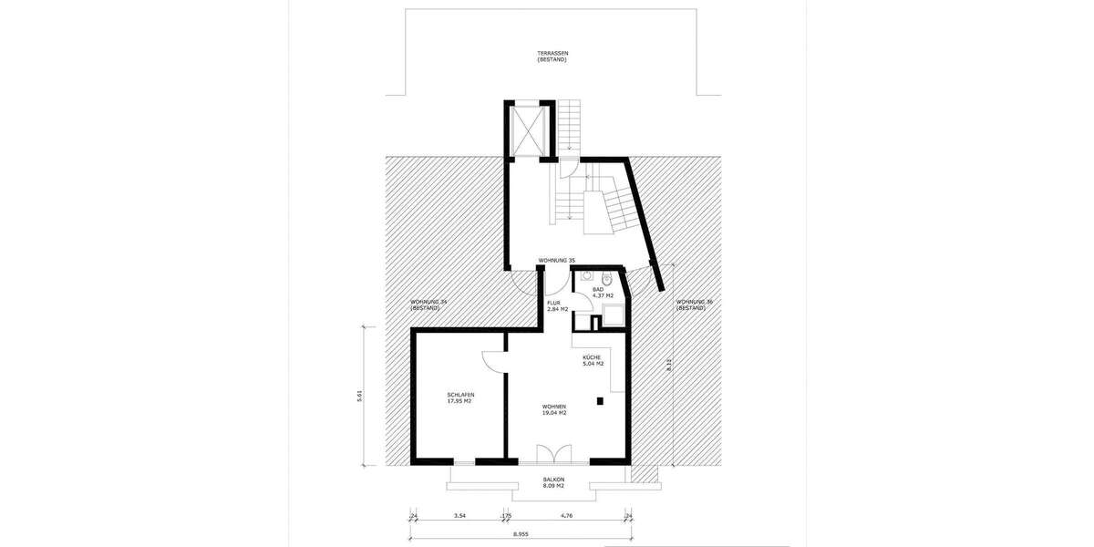
Informationen zur Immobilie:
Zimmeranzahl
1
Ort
76189 Karlsruhe
Objektart
Zimmer
Größe
ca.
1.500 €
Beschreibung:
Wohnen auf Zeit in Karlsruhe 1.500 € ...
mehr erfahren
Mehr Infos ➜
weitere Zimmer
❮
alle Zimmer
❯
alle Zimmer
weitere Angebote in Karlsruhe
Orte im Umkreis
Pforzheim
Baden-Baden
Rastatt
Landau in der Pfalz
Bruchsal
Ettlingen
Gaggenau
Bretten
Stutensee
Germersheim
Rheinstetten
Pfinztal
Wörth am Rhein
Eggenstein-Leopoldshafen
Karlsbad
Kraichtal
Über Uns
Impressum
Datenschutz
Cookies
Copyright © 2000 - 2026 | 1A Infosysteme GmbH | Content by: 1A-Mieterportal.de 26.04.2026