Gewerbeobjekt Bottrop Stadtmitte - 2 Zimmer, 116 m², 1.740€ | Angebot:26143239 Gewerbeobjekt Bottrop Stadtmitte - 2 Zimmer, 116 m², 1.740€ | Angebot:26143239 Gewerbeobjekt Bottrop Stadtmitte - 2 Zimmer, 116 m², 1.740€ | Angebot:26143239 Gewerbeobjekt Bottrop Stadtmitte - 2 Zimmer, 116 m², 1.740€ | Angebot:26143239
Gewerbeobjekt Bottrop Stadtmitte - 2 Zimmer, 116 m², 1.740€ | Angebot:26143239 Gewerbeobjekt Bottrop Stadtmitte - 2 Zimmer, 116 m², 1.740€ | Angebot:26143239 Gewerbeobjekt Bottrop Stadtmitte - 2 Zimmer, 116 m², 1.740€ | Angebot:26143239 Gewerbeobjekt Bottrop Stadtmitte - 2 Zimmer, 116 m², 1.740€ | Angebot:26143239

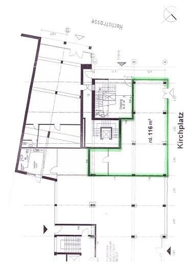
Zentral gelegenes Eck-Ladenlokal mit 2 Schaufensterfronten in der Bottroper Innenstadt Hochstraße *** PROVISIONSFREI ***

Informationen zur Immobilie:
Zimmeranzahl
2
Ort
46236 Bottrop
Objektart
Gewerbeobjekt
Größe
ca. 116,00 m²
Energieausweis
Verbrauchsausweis
Energieverbrauchkennwert
82,9 kWh/(m²·a) kWh/(m²·a)
EPass gültig bis
25.01.2025
1.740 €
(zzgl. Nebenkosten)
Kaltmiete
Beschreibung:
Mehr zum Angebot Zentral gelegenes Eck-Ladenlokal mit 2 Schaufensterfronten in der Bottroper Innenstadt Hochstraße *** PROVISIONSFREI ***:

Das hier zur Miete stehende Objekt wurde regelmäßig instandgehalten und gepflegt.

Das Ladenlokal eignet sich hervorragend für attraktiven Einzelhandel, Gastronomie, Café-Betrieb, Eisdiele, Büronutzung oder Dienstleistungsbranche.

Lage
Das Ladenlokal befindet sich in... mehr erfahren
weitere Gewerbeobjekte
weitere Angebote in Bottrop
social facebook social youtube social instagram social tiktok

Copyright © 2000 - 2026 | 1A Infosysteme GmbH | Content by: 1A-Mieterportal.de 16.04.2026