Etagenwohnung Rheurdt - 4 Zimmer, 92 m², 610€ | Angebot:25378996 Etagenwohnung Rheurdt - 4 Zimmer, 92 m², 610€ | Angebot:25378996
Etagenwohnung Rheurdt - 4 Zimmer, 92 m², 610€ | Angebot:25378996 Etagenwohnung Rheurdt - 4 Zimmer, 92 m², 610€ | Angebot:25378996

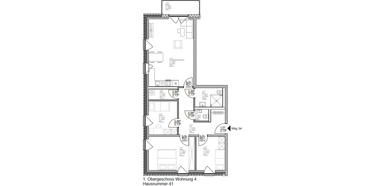
4-Zimmer-Wohnung mit WBS A und B in Rheurdt

Informationen zur Immobilie:
Zimmeranzahl
4
Ort
47509 Rheurdt
Objektart
Wohnung
Größe
ca. 92,00 m²
610 €
(zzgl. Nebenkosten)
Kaltmiete
Beschreibung:
Mehr zum Angebot 4-Zimmer-Wohnung mit WBS A und B in Rheurdt:

Diese ca. 91 m² große Wohnung befindet sich im Obergeschoss einer neu errichteten Wohnanlage mit insgesamt 10 öffentlich geförderten Wohneinheiten. Eine weitere 4-Zimmer-Wohnung liegt im Erdgeschoss. Die Wohnungen werden voraussichtlich... mehr erfahren
weitere 4 Zimmer Wohnungen
weitere Angebote in Rheurdt
social facebook social youtube social instagram social tiktok

Copyright © 2000 - 2026 | 1A Infosysteme GmbH | Content by: 1A-Mieterportal.de 16.04.2026